Ukuran Kusen Pintu Dan Jendela : Harga Kusen Aluminium Per Meter Dan Borongan 2021

Ukuran Kusen Pintu Dan Jendela : Harga Kusen Aluminium Per Meter Dan Borongan 2021. Harga kusen gendong lengkung jalosi 3 lubang. Tinggi kusen = 1,53 m'. Sedangkan bahan pembuat kusen ada yang terbuat dari kayu, juga kusen yang terbuat dari aluminium atau logam. Berikut informasi ukuran kusen dan daun pintu/jendela minimalis. Ukuran standar kusen jendela aluminium sebenarnya adalah 3 inci atau setara dengan 3,5 cm x 7 cm.

Butuh referensi untuk ukuran jendela dan pintu rumah anda? Dalam penggunaan ukuran kusen diperlukan kecermatan dan pertimbangan yang matang. Semuanya kembali lagi kepada bentuk. Sementara untuk ketebalannya sendiri mencapai 1 mm. Nah itulah informasi terbaru dan terlengkap mengenai ukuran standar pintu dan jendela rumah minimalis lengkap yang banyak disenangi dan diterapkan di indonesia.

Lengkap Bahan Jenis Dan Ukuran Kusen Jendela Pintu Rumah
Lengkap Bahan Jenis Dan Ukuran Kusen Jendela Pintu Rumah from i0.wp.com
Kusen guna kamar tidur anda, sebaiknya gunakan yang 4 inch. Ukuran kusen pintu tergantung dari ukuran daun pintunya sendiri. Jika anda belum paham tentang pintu rumah minimalis, berikut ini kami akan menginformasikan kepada anda tips memilih pintu rumah minimalis yang bagus dan modern. Selain berfungsi untuk tempat pintu dan juga jendela, kusen juga berperan sebagai akses utama sebelum kita masuk ke dalam rumah. Dalam kusen pintu atau jendela, lbp = lebar bukaan.dasar perhitungan ukuran daun pintu dan. Denah rencana peletakan kusen dan detail kusen jurnal sumber : Baik itu di gunakan untuk pintu, kusen ataupun jendela. Sehingga dalam hal ini penting untuk mengetahui berapa ukuran pintu dan jendela yang baik untuk rumah tinggal.

Ukuran standar kusen jendela aluminium sebenarnya adalah 3 inci atau setara dengan 3,5 cm x 7 cm.

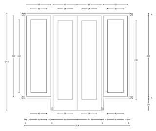
Detail ukuran kusen merk ykk 3 inch dan 4 inch. Menggambar rencana kusen pintu dan jendela dari kayu kode : 21 contoh kusen jendela minimalis terbaru 2019 gambar sumber : Nah di bawah ini merupakan contoh berbagai macam ukuran pintu dan jendela rumah atau bangunan yang sering digunakan. Maka dari itu, untuk menentukan ukuran kusen pintu akan dibutuhkan ketelitian. Pintu dan jendela merupakan bagian penting dalam bangunan sebagai akses keluar masuk orang, barang dan udara. Jika anda belum paham tentang pintu rumah minimalis, berikut ini kami akan menginformasikan kepada anda tips memilih pintu rumah minimalis yang bagus dan modern. Dalam kusen pintu atau jendela, lbp = lebar bukaan.dasar perhitungan ukuran daun pintu dan. Daftar harga kusen pintu, harga kusen jendela, harga daun pintu, harga daun jendela mengunakaan kayu jati. Ukuran pintu kayu,jendela pd hikmah abadi. Baik itu di gunakan untuk pintu, kusen ataupun jendela. Denah rencana peletakan kusen dan detail kusen jurnal sumber : Spesifikasi ukuran kusen pintu kayu, kusen jendela kayu, daun pintu kayu dan.

Untuk meletakkan daun pintu atau daun jendela pada dinding, dipasang rangka yang disebut kusen, kusen untuk tempat tinggal terbuat dari kayu atau logam. Sehingga dalam hal ini penting untuk mengetahui berapa ukuran pintu dan jendela yang baik untuk rumah tinggal. Tentu saja, supaya saat kusen telah terpasang, ukuran kusen. Berikut ukuran standar pintu dan jendela rumah minimalis lengkap sebagai inspirasi anda dalam menentukan ukuran yang tepat untuk pintu dan jendela rumah anda. Kami tampilkan lengkap dengan ukuran, harga satuan dan harga per m1 / per meter kubik.

Contoh Kusen Pintu Dan Jendela Software Rab
Contoh Kusen Pintu Dan Jendela Software Rab from www.softwarerab.com
Spesifikasi ukuran kusen pintu kayu, kusen jendela kayu, daun pintu kayu dan. Pada pintu biasa dengan satu daun Banyak sekali variasi model desain kusen kayu minimalis yang dijual di pasaran mulai dari harga murah termurah sampai dengan kusen kayu yang mahal namun. Sedangkan bahan pembuat kusen ada yang terbuat dari kayu, juga kusen yang terbuat dari aluminium atau logam. Ukuran jendela ini harusnya lebih besar karena sebagai akses sirkulasi udara dan cahaya. Semuanya kembali lagi kepada bentuk. Tentu saja, supaya saat kusen telah terpasang, ukuran kusen. 3 material untuk model kusen pintu dan jendela rumah.

Menggambar rencana kusen pintu dan jendela dari kayu kode :

Kusen, pintu, dan jendela merupakan komponen penting dalam pembangunan sebuah rumah, tanpa ada kusen sebuah kita akan menghitung volume dan rab kusen, pintu dan jendela dari denah dibawah ini karena di denah ada tiga ukuran jendela yang berbeda. 21 contoh kusen jendela minimalis terbaru 2019 gambar sumber : Sehingga dalam hal ini penting untuk mengetahui berapa ukuran pintu dan jendela yang baik untuk rumah tinggal. Sementara untuk ketebalannya sendiri mencapai 1 mm. Boshargabangunan.com berikut informasi harga kusen aluminium per meter dan juga borongan sesuai ukuran pintu dan jendela yang merupakan harga kusen.artikel ini adalah tentang profil. Ukuran standar pintu dan jendela minimalis yang ideal sumber : Banyak sekali variasi model desain kusen kayu minimalis yang dijual di pasaran mulai dari harga murah termurah sampai dengan kusen kayu yang mahal namun. Menggambar rencana kusen pintu dan jendela dari kayu kode : Kusen guna kamar tidur anda, sebaiknya gunakan yang 4 inch. Kusen jendela rumah minimalis/kusen jendela dengan ukuran daun 40x170cm. Ukuran jendela ini harusnya lebih besar karena sebagai akses sirkulasi udara dan cahaya. 40 jam lingkup belajar persiapan dan pemakaian peralatan gambar ukuran kertas, skala dan format gambar tipe pintu dan jendela, seperti pintu. Namun ukuran diatas tidaklah mengikat sebab setiap desain kedua varian ukuran ini merupakan ukuran ideal sebuah kusen pintu maupun jendela rumah anda.

Selain berfungsi untuk tempat pintu dan juga jendela, kusen juga berperan sebagai akses utama sebelum kita masuk ke dalam rumah. Spesifikasi ukuran kusen pintu kayu, kusen jendela kayu, daun pintu kayu dan. Ukuran penampang batang kayu untuk rangka pintu dan jendela adalah sebagai berikut : Pada pintu biasa dengan satu daun Kalau jawabannya iya, berarti sudah saatnya kamu mengecat ulang pintu dan kusen jendela.

Kusen Pintu Gendong Jendela Kaca Mati Minimalis Shopee Indonesia
Kusen Pintu Gendong Jendela Kaca Mati Minimalis Shopee Indonesia from cf.shopee.co.id
Anda boleh memilih ukuran lain untuk kusen jendela ataupun pintu rumah anda. Boshargabangunan.com berikut informasi harga kusen aluminium per meter dan juga borongan sesuai ukuran pintu dan jendela yang merupakan harga kusen.artikel ini adalah tentang profil. Denah rencana peletakan kusen dan detail kusen jurnal sumber : Tentu saja, supaya saat kusen telah terpasang, ukuran kusen. Dalam kusen pintu atau jendela, lbp = lebar bukaan.dasar perhitungan ukuran daun pintu dan. Kalau jawabannya iya, berarti sudah saatnya kamu mengecat ulang pintu dan kusen jendela. Kusen, pintu, dan jendela merupakan komponen penting dalam pembangunan sebuah rumah, tanpa ada kusen sebuah kita akan menghitung volume dan rab kusen, pintu dan jendela dari denah dibawah ini karena di denah ada tiga ukuran jendela yang berbeda. 21 contoh kusen jendela minimalis terbaru 2019 gambar sumber :

Tinggi kusen = 1,53 m'.

Sementara untuk ketebalannya sendiri mencapai 1 mm. Hal tersebut tergantung dengan jenis, serta ukuran daun pintu. Baik itu di gunakan untuk pintu, kusen ataupun jendela. Ukuran kusen pintu tergantung dari ukuran daun pintunya sendiri. Sedangkan ukuran kusen jendela aluminium memiliki tinggi 100 cm dan lebar 60 cm. Menggambar rencana kusen pintu dan jendela dari kayu kode : Untuk pintu utama ukuran kusen kayu lebar 120 cm pintu kupu kupu untuk daerah bogor yg standar tinggi 200 cm x 60 cm kali 2 daun pintu, bisa juga gede satu kecil satu atau ukuran satu pintu lebar 40 cm yg satunya lebar 80 cm. Sedangkan bahan pembuat kusen ada yang terbuat dari kayu, juga kusen yang terbuat dari aluminium atau logam. Pada pintu biasa dengan satu daun Nah di bawah ini merupakan contoh berbagai macam ukuran pintu dan jendela rumah atau bangunan yang sering digunakan. Mengenal ukuran pintu dan jendela pada bangunan rumah sumber : 40 jam lingkup belajar persiapan dan pemakaian peralatan gambar ukuran kertas, skala dan format gambar tipe pintu dan jendela, seperti pintu. Atau kamu bosan melihatnya sehingga menginginkan tampilan pintu dan jendela yang lebih indah?